
1 BHK Homes

Dec 2026

Starts From 1.35Cr.*

New Launch
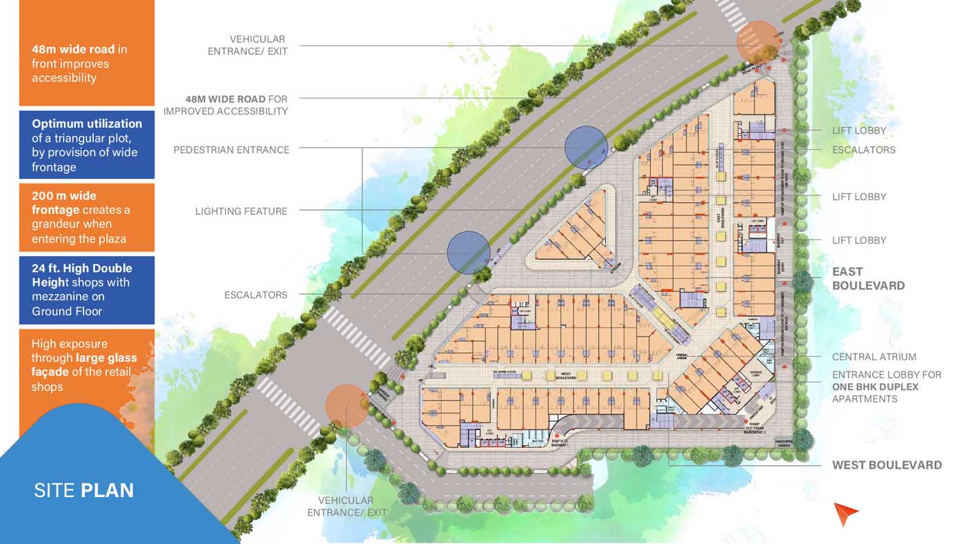
Introducing M3M 57th Suites on Golf Course Extension Road by M3M India, where innovative formats meet luxurious living. Immerse yourself in the heart of Gurgaon with our unique concept of loft living. Experience contemporary design and conceptual innovation with our plush 1 BHK luxury duplex apartments spread across 9 floors. Our striking architecture offers direct horizontal access from the road, complete with a welcoming drop-off point. Step inside to discover double-height units with ceilings soaring approximately 20 feet high, setting a new standard in upscale living.
Area (Acres)
Towers
Total floors
Total Units
EXPLORE THE REALM OF THE AVANT-GARDE LIVING!
Multiple
Clubhouses
Community
Gardens
Swimming
Pool
Yoga
Desk
Multipurpose
Halls
Mini
Theatre
Pet-friendly
Parks
Fitness
Centre

Multi-Cuisine
Restaurant

High Street
Market

Dazzling
Pubs

Reflexology
Park
About Builder
M3M Group, a real estate company that prides itself on innovative ideas, high-quality materials, advanced technology, and a commitment to providing a better lifestyle with complete security systems. Their focus on offering more than what buyers expect has helped them carve out a significant position in the real estate sector. With a diverse team of professionals dedicated to delivering excellence, M3M aims to provide lucrative returns for their clients in the future.
Copyright © 2026 | All rights reserved.
Disclaimer: This is not the official website of the developer, it belongs to an authorized channel partner and is used for information & Marketing purposes only. All rights for logo & images are reserved to the developer. The information provided herein has been collected from publicly available sources and is yet to be verified as per RERA rules. The information sources used here include onsite interviews, marketing material, and other information sources on the Internet. These data have not yet been verified against authentic documents, and are only indicative of the actual situation of this property, project, or land holding, and their ownership. At Titans Consultancy, we provide this information to help our users find publicly available data in a structured format. We are in the process of connecting with the relevant owners and verifying the data as per the provisions of the Real Estate (Regulation and Development) Act, 2016. We will keep updating the information here regularly. Further, we do not intend to market or sell any project by providing this information, please consider this data and information as indicative and use your judgment and verify any information before making any decision.
Why should Buy this project?

Zero
Brokerage

Full Service
Support

Lowest Price
Guaranteed

